renovation-appartement-rhone
renovation-appartement-rhone

Rénovation de 8 studios à Villefranche (69) pour un investisseur

Nous avons accompagné un investisseur pour la rénovation de 8 studios dans une belle bâtisse du centre ville de Villefranche-sur-Saône. Notre mission a été de lui proposer l'aménagement de ces appartements, pour créer un coup de cœur et permettre une mise en location rapide et durable.

plan optimisation
plan optimisation
Rénovation intérieure

Pour ce projet de rénovation à Villefranche-sur-Saône, nous avons choisi d'aménager de jolies surfaces pour ces 8 studios, en proposant à leur futur locataire, des espaces distincts et fonctionnels : une petite cuisine digne d'une grande, une jolie salle d'eau, un coin salon et une alcôve pour accueillir le lit double. Les 8 studios ont trouvé preneur dès leur mises en location.

Voici les photo d'un premier studio :

chambre après
renovation-appartement-rhone
salle de bain optimisation
plan optimisation

Photos d'un second studio

Rénovation intérieure

Voici les photos d'un second studio. Le studio de moins de 25 m2 a été un vrai défi d'aménagement. La faible hauteur sous toiture sur 3 faces a orienté l'aménagement et a demandé à l'équipe Les Piliers du Bâtiment de faire preuve d'astuce. Laisser l'espace central libre pour faciliter la circulation et aménager les différents espaces en périphérie. La cuisine dessinée comme un petit îlot central permet d'être utilisée autant côté cuisine que côté douche. Conçu pour créer un petit cocon sous les toits, ces petits espaces peuvent toujours être aménagés de façon astucieuse.

Studio dans les combles 25 m² -b
Studio dans les combles 25 m² -a
Studio dans les combles 25 m²

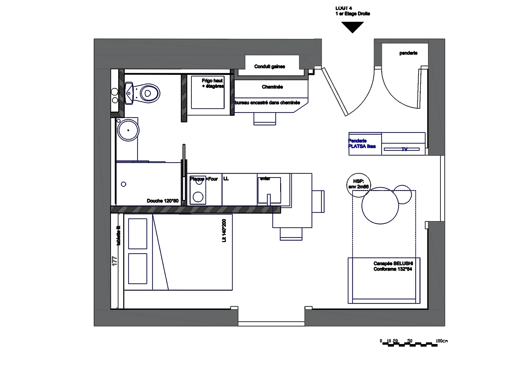
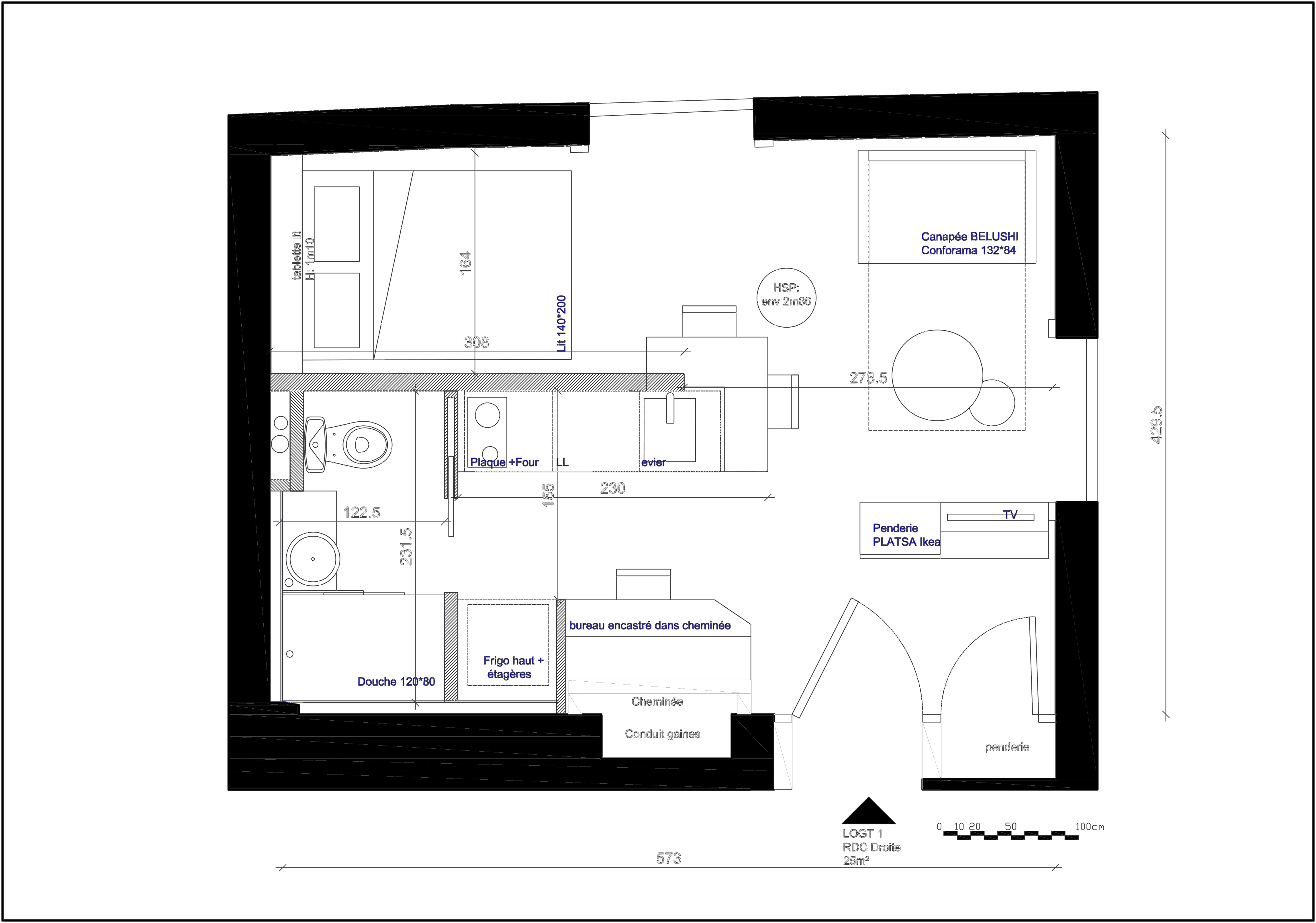
Photos d'un troisième studio

Rénovation intérieure

Voici les photos d'un troisième studio. Ce petit studio de 25m2 a été conçu comme un grand. Un espace cuisine avec tout l'électroménager indispensable et plus encore, une jolie salle de bain avec douche 120x90cm, un espace salon, une petite table pour faire de vrais repas. Mais disposer d'un véritable lit dans un studio est un véritable atout. Pour cette raison, une alcôve a été conçu pour accueillir un lit double. Chaque espace défini permet de profiter de chaque m2.

Studio avec coin nuit 25 m² plan - a
Studio avec coin nuit 25 m² plan - c
Studio avec coin nuit 25 m² plan -b
Studio avec coin nuit 25 m² plan