chambre-1
chambre-1

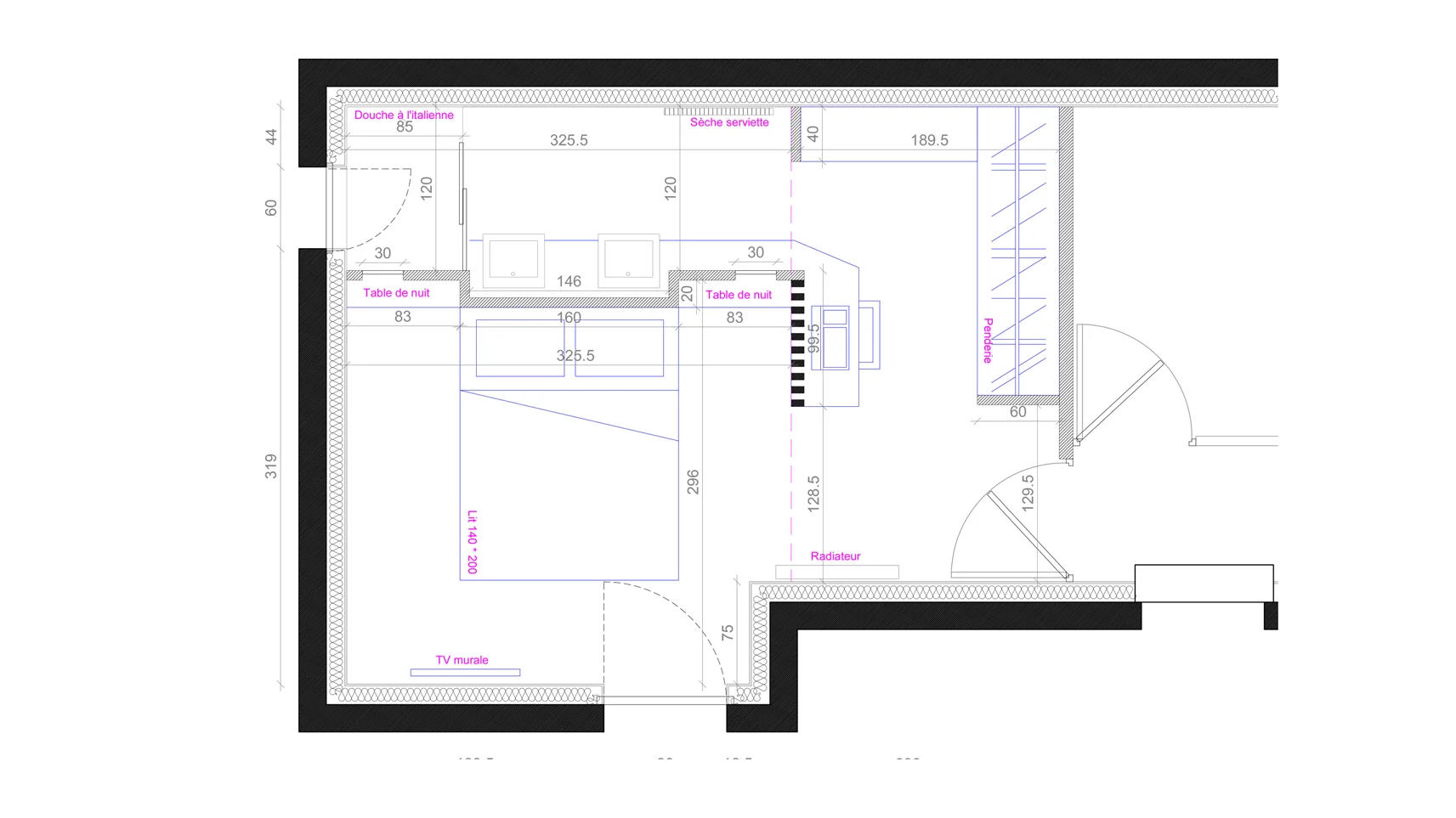
Rénovation d'une suite parentale de 20m²

Chaque projet est unique et le sujet de la suite parentale inépuisable. Pour ce projet, nous avons travaillé pour un couple qui souhaitait trouver des solutions pour aménager cet espace de 20m² créé par leur nouvelle extension.

plan-chambre-20m2
plan-chambre-20m2
Plans

Disposant d’une surface de 20m² pour leur future suite parentale, nous leur avons proposé de créer trois zones ouvertes pour garder l’impression d’espace et jouer sur des perspectives entre le dressing, la salle de bain et la zone couchage grâce à des fenêtres vitrées. Les espaces restent distincts et l'aménagement proposé permet de créer de jolis jeux de lumières. Le jeu des verticales avec les fenêtres et les tasseaux de bois sur la tête de lit permettent d’agrandir visuellement l’espace.

chambre-1
vue-plan-architecte
salle de bain
plan-3D-chambre
plan-chambre-20m2