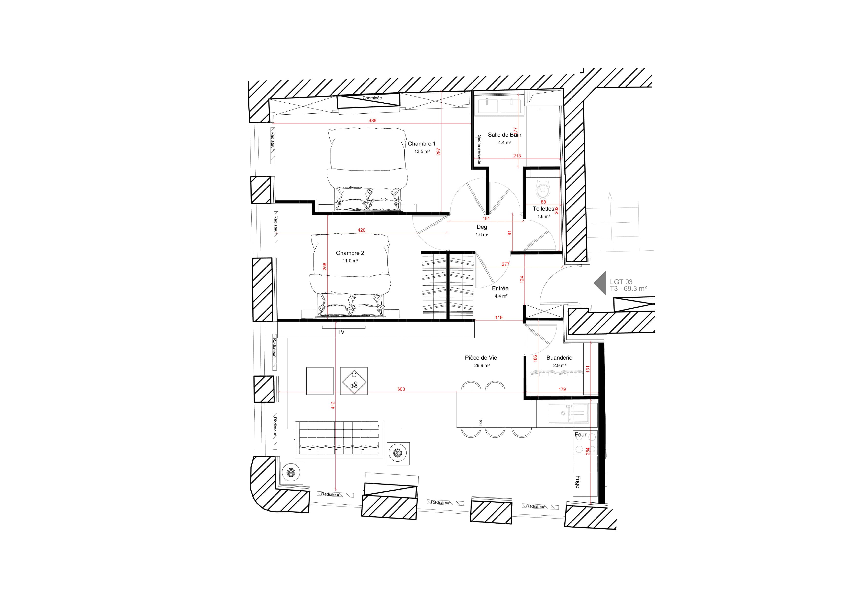
Plan appartement 70 m² avec deux chambres
Plan appartement 70 m² avec deux chambres

Plan 3D d'une pièce de vie avec ilot central

Ces plans 3D ont été réalisés dans le contexte de la rénovation d'une pièce de vie. Dans le but de la moderniser, la création d'un îlot central et d'une cheminée suspendue a été proposée.

Projet M1 (1)-min
Projet M1 (1)-min
Plans

Dans le cadre de la rénovation de cette pièce de vie, l'intégration d'un îlot central surmonté d'une cheminée suspendue apporte une touche d'élégance et de modernité.

Projet M1 (1)-min
Projet M5-min
Projet M4-min
Projet M2-min
Projet M6 (1)-min

Le projet

La cuisine, réalisée en noyer sur-mesure et un plan de travail en Dekton, se distingue par son design sophistiqué et ses matériaux haut de gamme.

Pour sublimer cet espace, des jeux de miroirs ont été astucieusement disposés, créant une illusion de profondeur tout en reflétant la lumière naturelle. Les courbes douces et les formes arrondies ajoutent une dimension harmonieuse, adoucissant les lignes contemporaines de la pièce. Le sol en parquet contre-collé, avec son aspect ancien, confère encore plus de caractère à l'ensemble, ajoutant une touche de chaleur et d'authenticité.

Le chantier est actuellement en cours de réalisation, promettant une pièce de vie où chaque élément, de la cheminée suspendue à la cuisine raffinée, participe à une ambiance chaleureuse et accueillante.